RSMSJ Latest News


Search: GO
119 entries available.


Road Closure - Emergency works by Thames Water on Park Street - Click here to view this entry
Emergency Works - Park Street - Road Closure   Dear RSMSJ Members,   Please be advised Westminster City Council have notified us of an emergency works permit on Park Street. Thames Water have applied for Road Closure located on Park Street outside no.2 junction with South Street due to an urgent repair on a leaking pipe. The repair works started on 30/10/2025 and are due to complet....
The Future of 40 Berkeley Square - Click here to view this entry
Public Consultation on proposals for the future of 40 Berkeley Square is now open. RSMSJ committee members have attended presentation on the proposal for 40 Berkeley Square.  To find out more and to give your feedback please use the website link here. The forthcoming consultation events are: Online Community Meeting:   Date: Monday 3rd November  Time: 6pm – 7p....
Closes Soon - Licensing Reform - Call for Evidence! - Click here to view this entry
Dear RSMSJ members, the government has launched an Open call for evidence for Reforming the licensing system. The deadline for contributing your views and evidence is very short – the consultation closes on midday on the 6th of November 2025. It’s pertinent that the local residents’ voices are being heard on this very important issue. We’ve been working with other communi....
Urgent: Proposed Pedestrianisation of Oxford Street - Click here to view this entry
Dear Residents,
We are writing with urgency regarding the Mayor’s plans to pedestrianise Oxford Street, under the newly formed Mayoral Development Corporation (MDC) a scheme that will have a direct and lasting impact on our community.

Control of Oxford Street and surrounding blocks has been removed from Westminster and Camden Councils under sole control of MDC silencing loc....
PediCabs Licensing Consultation concludes - Click here to view this entry
The second part of the consultation on Pedicab regulation closed on Monday 20th October.  Many thanks for sending us your feedback in relation to this issue. The first consultation in March garnered over 7,000 responses.  TfL acknowledged that most respondents to the first consultation said that pedicabs should be banned and not regulated, the audio from pedicabs is too loud and a....
Stub Roads Greening Consultation - now closed - Click here to view this entry
Dear RSMSJ Members,

Westminster City Council launched Stub Road Greening Engagement on Thursday 31st July,  which has closed on the 25th October 2025. WCC is exploring ways to transform underused stub roads (dead-end streets) into greener, more attractive community spaces. Examples include adding plants, trees, and features like rain gardens, which can improve mental wellbeing, su....
WESTMINSTER CEREMONIAL STREETSCAPE PROJECT - Click here to view this entry
Westminster City Council - Consultation on Traffic Management Proposals

WESTMINSTER CEREMONIAL STREETSCAPE PROJECT

WSP is the agent acting on behalf of Westminster City Council for a traffic management scheme affecting a number of roads that lie in the
vicinity of Buckingham Palace, St. James's Park, Whitehall, the Houses of Parliament and Westminster Abbey.  A....
Temporary Road Closure Thursday 14th August 2025 - Click here to view this entry
Dear Residents, Please note that the road along the front elevation of the Chancery Rosewood Hotel will be temporarily closed for twelve (12) hours from 0600 am on Thursday 14 August to allow a mobile crane to lift glass into the higher levels of the building.  There will be full, controlled pedestrian access along the garden square side of the road.

Please see attache....
Final Call - Consultation: The Future of Regent Street, Haymarket and Piccadilly Circus - Click here to view this entry
Dear RSMSJ Members,
Westminster City Council and The Crown Estate are moving into the next phase of the Future of Regent Street, Haymarket and Piccadilly Circus, and are now inviting residents to explore their proposals on this once-in-a-generation project and share your views.

This is one of key opportunities for local residents to help shape the public realm masterplan an....
An RSMSJ History Talk by Peter Heath - Date TBC - Click here to view this entry
Peter Heath has been an architect and town planner advisor for the St. James’s Conservation Trust for over 25 years!

We are lucky to have him host a talk on St. James’s 'Unique Characteristics and Impacts of Historic People, Places, Spaces, Old and New Buildings' - in maps, images, events and photographs. Currently, the date and location of this even....
RSMSJ History Lecture - 'Before May Fair Became Mayfair'  by Dr. Francis Boorman - Click here to view this entry
Dear Members,

We were so happy to see so many of you at our first lecture by Dr. Francis Boorman on the
History of Mayfair entitled 'Before May Fair Became Mayfair' in the
Farm St Church on the 15th of July 2025 - 18.30-20.00.

Dr. Boorman talked how the open fields between Hyde Park and the spreading metropolis were built up into a wealthy suburb of gr....
Blackburne's Mews Closed for Traffic 22nd - 25th July  - Click here to view this entry
Blackburne's Mews closed for Traffic Tuesday 22nd July - Friday 25th July 

Please be reminded that Blackburne's Mews will be closed to traffic between Tuesday 22nd July and Friday 25th July (inclusive). This is to allow a mobile crane to be located in the Mews to undertake glass replacement in the upper levels of the hotel.
Free Tickets Exclusively to RSMSJ Members! - Click here to view this entry
We’re delighted to see that so many of you responded to the Royal Parks offer of free tickets exclusively to RSMSJ Members for BST Hyde Park, the Darts Championship and All Things Orchestral.

Can those lucky winners please email communityliaison@rsmsj.com with the subject line:
'BTS HYDE PARK the Darts Championship, and All Things Orchestral', describi....
Final Call - Please Support: New Powers to Tackle Anti-Social Behaviour - Click here to view this entry
Westminster City Council's consultation on New Powers to tackle Anti-social Behaviour ends this Sunday - 6th July - please take part in the consultation and support the extension of powers to curb anti-social issues !

Here's the Council PSPO consultation link –  
[link]....
RSMSJ Response to the Westminster After Dark Strategy - Click here to view this entry
Dear Members,

Following extensive discussions with residents, representatives from other Westminster communities, and members of the council, we are writing to share the RSMSJ Committee’s formal response to Westminster City Council’s proposed Westminster After Dark Strategy. This strategy sets out to promote a more active night-time economy, but regrettably does so wit....
Queen Elizabeth II National Memorial Competition - Click here to view this entry
Queen Elizabeth II National Memorial Masterplan Design Competition Finalists Selected



Five design concepts have been shortlisted in the two-stage open competition to create a memorial masterplan celebrating
Queen Elizabeth II’s extraordinary life of service.
The Queen Elizabeth Memorial Committee and the Cabinet Office welcome your feedback on the ....
Free Community Planning Advice Service for Major Applications in Westminster - Click here to view this entry
Dear Members, 

We wanted to share news from Westminster City Council about a new Community Planning Advice Service now available to residents, businesses and community groups across the borough.

Launched on Monday 28th April, this pilot service offers free, independent advice on major planning applications in Westminster - those proposing 10 or more new homes or 1,00....
Discussions with Rachel Blake MP on Pathways to Work  - Click here to view this entry
Dear RSMSJ Members, Last week, the RSMSJ executive committee attended online and in-person sessions hosted by Rachel Blake MP, focusing on the government's Pathways to Work Green Paper, outlining major proposed reforms to disability benefits and employment support. Rachel has since shared a follow-up email offering further opportunities to speak directly with her. She reiterated the followi....
Have Your Say on the Pedestrianisation of Oxford Street - Click here to view this entry
Dear Members, To support you and our neighbourhood, please find below a letter we have drafted (in bold) outlining key points on your behalf and addressed to the Mayor of London's office, opposing the pedestrianisation of Oxford Street. Feel free to edit and add points of personal interest before sending it to TfL. Our intention is simply to provide a starting point and thought-starters to make ....
Road Closure - Emergency Works on Berkeley Street (29th Nov - 5th Dec) - Click here to view this entry
Dear All Please be advised we have received an emergency works permit on Berkeley Street . All details we currently have are provided below, any additional information or changes will be updated once received. WORKS PROMOTER: Thames Water PROMOTER WORKS REFERENCES: MU70100698239-001-01 LOCATION (+ nearest junction): Outside 20 Berkeley Street WORKS DESCRIPTION: Repair on Water Main START DAT....
South Molton - Out of Hours Site Cabin Removal Works - Click here to view this entry
Dear Neighbour, We would like to bring to your attention that we have been granted permission from Westminster City Council to conduct out of hours works on Saturday 30th November at 7am to 1pm and Sunday 1st December 7am to 11am. We will be carrying out the removal of the site welfare cabins. On Saturday 30th November and Sunday 1st December large vehicles will be brought onto the site in a con....
Consultation invitation: Help make WCC's new infrastructure plan clear and engaging - Click here to view this entry
Draft Infrastructure Delivery Plan Public Consultation Dear Residents' Society of Mayfair and St James's, Westminster City Council has a new plan for infrastructure. The draft Infrastructure Delivery Plan (draft IDP) identifies the infrastructure our communities need now and as we grow. It sets out our strategic vision for infrastructure over the coming decades. We are now consulting on the dr....
Support Our Local Post Offices - Rachel Blake MP - Petition - Click here to view this entry
Rachel Blake has setup an online petition against local post office closures.
Please consider signing: The link to the petition is rachelblake.org.uk/campaigns
Westminster - Last chance to have your say - Click here to view this entry
HAVE YOUR SAY BY 18 NOVEMBER This is your last chance to have your say and help shape the future of Westminster’s streets and spaces, including parks, squares, and alleyways. Our goal is to improve the spaces between and around buildings, making them more accessible, attractive, and sustainable for all. From enhancing pedestrian walkways to creating more green spaces, these new guidelines a....
Noisy cars Mayfair PSPO consultation now open, ends 27th Nov 2024 - Click here to view this entry
Dear All, I am pleased to announce that the nuisance-vehicle Public Space Protection Order (PSPO) consultation is now live:
vehiclepspo.commonplace.is/en-GB/proposals/extending-the-nuisance-vehicle-pspo/step1 Urgent: we have only fourteen days until the 27th November to submit our evidence and concerns about the noise and danger from revving and speeding cars and associated anti-social beha....
South Molton Street Community Newsletter: November 2024 - Click here to view this entry
Hello Neighbour,
Welcome to the community newsletter from McGee. We are carrying out the demolition and façade retention phase for the North and South blocks as part of the South Molton development, on behalf of Grosvenor and Mitsui Fudosan. In this issue. Progress so far Site working hours Planned works McGee’s novation to Skanska Key contacts Site working hours
Grosvenor Square Out of Hours Weekend Works - Click here to view this entry
Dear Residents and Stakeholders, Please note that WCC approved out of hours works will be taking place on site as follows: Saturday 2nd, 9th, 16th, 23rd, 30th of November 1pm-4pm
Sunday 3rd, 17th, 24th of November 10am-4pm This is our final push to finalise the external works around the site perimeter and operatives have been instructed to keep noise and disruption to an absolute minimum.....
Letter to the Chancellor of the Exchequer from Councillor Paul Swaddle - Click here to view this entry
To whom it may concern, I hope this email finds you well. Councillor Paul Swaddle, the Leader of the Opposition at Westminster City Council, has asked me to share the letter he has written to the Chancellor of the Exchequer ahead of the Autumn Budget (see attached). Please feel free to share it with your members, residents and anyone you see fit. If you have any questions, please do not hesitat....
Tree Planting Activity on Site - Click here to view this entry
Dear Residents and Stakeholders, Please note that as part of the landscaping programme, a number of trees will be planted at the front of the hotel over three weekends as follows: Weekend of 2 & 3 November
Weekend of 9 & 10 November
Weekend of 16 & 17 November (back-up dates) Timings: 6am to 6pm Saturday and Sunday The works (non-noisy) have been approved by WCC and w....
Vinyl record donations for local youth charity - Click here to view this entry
Dear Residents, Please forgive the unusual request! I am working with a youth charity in Westminster (disadvantaged children and those with learning difficulties) that is running a project associated with vinyl records (all genres and ages). In essence, learning about early music production and curating certain styles and artists that have influenced the music scene (including classical music). ....
Imperial College Healthcare - Partner update: October 2024 - Click here to view this entry
A lot has happened since our last issue – not least a change of government. We’re returning with a more regular, monthly schedule of updates to keep you posted on our key developments and achievements, as well as to offer insights into the experiences of our staff and patients. In this issue, we share news of an important milestone on our journey to equity and inclusion – the pu....
The London Spy - The last days of the pedicab wild west - Click here to view this entry
15-hour shifts on speed, strip club kickbacks: The last days of the pedicab wild west To some, they've become the "scourge" of the West End. But is a coming crackdown on pedicabs about to go too far? Morning — even the King has hated on the neon-lit, boombox-blasting rickshaws of the West End. "A bill will be introduced to deal with the scourge of unlicensed pedicabs in London,” said....
What we have and what we have lost – Soho Street Heritage Project - Click here to view this entry
The Soho Neighbourhood Forum has launched a street heritage study in collaboration with urban designers Publica and urban design specialist, and Soho resident, Bahar Durmaz-Drinkwater. Launched in September 2024, the heritage audit will document the location and historic details of heritage objects that contribute to Soho's unique character. The notable architectural history of the area is well-d....
South Molton Street Community Newsletter: October 2024 - Click here to view this entry
Hello Neighbour,
Welcome to the community newsletter from McGee. We are carrying out the demolition and façade retention phase for the North and South blocks as part of the South Molton development, on behalf of Grosvenor and Mitsui Fudosan. In this issue. Progress so far Site working hours Planned works Community engagement Key contacts Site working hours
Wine Bar Mayfair Events - Click here to view this entry
Fri Sep 27 2024
Forthcoming evens at the Art Farm Shop on Audley Street Beef, ribeye steak, Butcher masterclass
29th September, 11am - 2pm
Farm Shop Mayfair
Guided by our Master Butcher and team you’ll learn how to take a rib down to the ribeye. Enjoy a glass of wine and steak afterwards, plus take home your prepped piece of ribeye.
Book now

Hix and Wild 
22nd O....
Statement regarding Oxford Street - Click here to view this entry
In response to the recent announcement from the Mayor of London regarding Oxford Street, our Chief Executive, Stuart Love, has issued the following statement: "Westminster City Council has spent the last two years working closely with businesses and resident groups to develop detailed proposals to redesign and improve Oxford Street. These plans are shovel ready, have had the support of retailers ....
School Streets - Have Your Say on the School Streets Proposals - Click here to view this entry


Have your say on the School Streets 2024 proposals Visit our website and have your say before 27th September School Streets provide Pedestrian and Cycle Zones outside a school’s main entrance, in operation in the morning and afternoon during school drop-off and collection times, Monday to Friday during term-time. School Streets is a key programme under the Fairer Westminster &....
Licensing News week ending 18.08.2024 - Click here to view this entry
If you are affected by any of the proposals within this update and attached pdf file, please comment, and send to the chairman at chair@rsmsj.com. Please find attached Licensing News for the week ending 18 August 2024. Attached to the Licensing News document are the Licensing Sub-Committee decisions for the hearing held on Monday 12 August 2024 for: Expedited Review of a Premises Licence in r....
South Molton Street Community Newsletter: August 2024 - Click here to view this entry
Please click here to read the latest update on works towards delivering South Molton.
A printed copy will also be delivered to neighbouring residents and businesses next week.

Click here to view the original newsletter online >


Licensing News week ending 04.08.2024 - Click here to view this entry
If you are affected by any of the proposals within this update and attached pdf file, please comment, and send to the chairman at chair@rsmsj.com. Please find attached Licensing News for the week ending 4 August 2024. Attached to the Licensing News document are the Licensing Sub-Committee decisions for the hearing held on Thursday 1 August 2024 for: W10 Coffee and Deli, 427-429 Harrow Road ....
Marylebone to West-End Public Consultation - Click here to view this entry
We are writing to inform you about our Marylebone to West-End Cycleway Route Alignment consultation, which launches on Monday 5th August 2024 for an 8 week period, closing on Monday 30th September 2024. A website, [link] has been set up providing information about the proposed scheme and includes an online survey form for you to leave your comments. Visit the co....
Westminster After Dark - Resident Association Members Questionaire - Click here to view this entry
As previously advised, following the recommendations from the Overview and Scrutiny Committee and alongside on-street surveys we have developed an online resident questionnaire that seeks to gather additional views and insights from residents on their evening and night-time experiences. We would be grateful if, via WASF that each resident and amenity society or association shares the attached lett....
Licensing News week ending 28.07.2024 - Click here to view this entry
If you are affected by any of the proposals within this update and attached pdf file, please comment, and send to the chairman at chair@rsmsj.com. Please find attached Licensing News for the week ending 28 July 2024. Attached to the Licensing News document are the Licensing Sub-Committee decisions for the hearing held on Thursday 25th July 2024 for: Clays 77 Brewer Street, London W1F 9ZN B....
Olympics FanZone & SMT inclusivity discussion - Click here to view this entry
We’ve got a couple of events and initiatives over the next month which we’re keen to involve as any residents in as possible and so I wondered if possible to promote on the RSMSJ channels? The Team GB Fanzone launched in Grosvenor Square last week and is running until Sunday 11th August. There’s a big screen showing the Olympic action in Paris, plus food and drink stalls. This S....
Licensing News week ending 21.07.2024 - Click here to view this entry
If you are affected by any of the proposals within this update and attached pdf file, please comment, and send to the chairman at chair@rsmsj.com. Please find attached Licensing News for the week ending 21 July 2024. Attached to the Licensing News document are the Licensing Sub-Committee decisions for the hearing held on Thursday 18th July 2024 for: 14-22 Ganton Street, W1F 7BS Basement an....
Shepherd Market - Works Update (25 July 2024) - Click here to view this entry
We would like to provide you with an update regarding the ongoing construction work in Shepherd Market. We are emailing you because we think you may be interested in this construction. You may unsubscribe from these emails at any time at the bottom of the email. Phase 1 Drainage Drainage excavations started on Monday 22 July outside Chill House Coffee and have now completed. The team have lo....
Westminster City Council - Consultation on Traffic Management Proposals - Shepherd Market (Carrington Street) - Click here to view this entry
You may recall that WSP, the agent acting on behalf of Westminster City Council, carried out a consultation between 21st February and 13th March 2024 for a traffic management scheme affecting Shepherd Market and the surrounding roads. Following this consultation, the City Council received valuable feedback regarding local businesses’ servicing requirements. As a result, the proposed kerbside....
Out of Hours Mobile Crane Movement Activity - South Molton | 24th July 2024 - Click here to view this entry
Dear Neighbour, We would like to bring to your attention that we have been granted permission from Westminster City Council to conduct out of hours works on Monday 29th July at 6pm to 8pm. This operation will involve demobilising our 60-tonne mobile crane, loading the crane within our site boundary onto the delivery vehicle and then transporting the mobile crane off site. The crane will be prep....
Westminster Together - Update - Click here to view this entry
Dear resident, We wanted to get in touch to let you know that we are still working to finalise the next date of Westminster Together, which will be in autumn 2024. Be assured that we will let you know as soon as we have a new date! In the meantime, if you would like another opportunity to share your experiences and what is important to you in Westminster, please do participate in our online con....
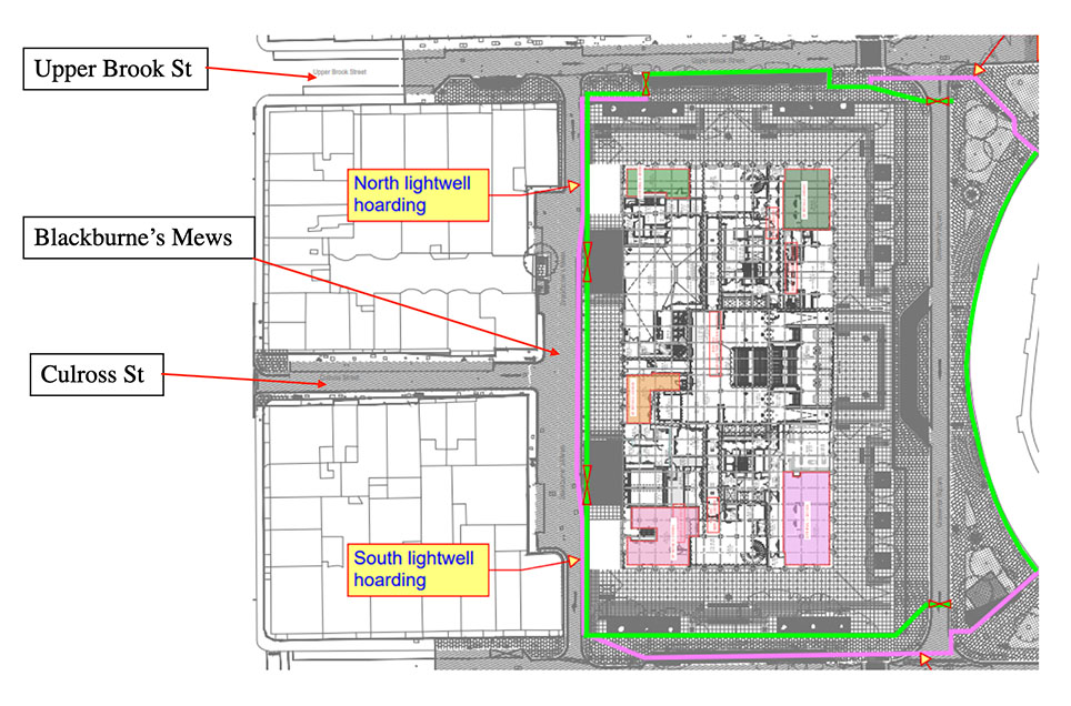
Hoarding/Light Well Works Blackburne's Mews - Click here to view this entry
Dear Residents and Stakeholders, Please note that works involving the two light wells and associated hoardings in the Blackburne's Mews elevation are planned as follows (please refer to attached diagram): South Lightwell 17 - 18 July 2024 - Remove the hoarding . 19 - 23 July 2024 - Break out works. 24 - 26 July 2024 - Kerbs and paving works. 29 - 30 July 2024 - Reinstate the hoarding. <....
Oxford Street Programme E-newsletter - July 2024 - Click here to view this entry
Welcome to the Oxford Street Programme Newsletter!

Here you will receive regular Oxford Street Programme (OSP) updates, notification of works, and information on opportunities to have your say on the future of Oxford Street and its surrounding area. View full e-newsletter here >

Newsletter includes:

Ongoing activity

Balderton Street Great Titc....
Villiers Street Update Email - Click here to view this entry
9 July 2024 Pedestrian and Cycle Zone in Villiers Street - Traffic Management Order update The new arrangements for the Pedestrian and Cycle Zone in Villiers Street are aimed to be in effect from 5am on the 22nd July 2024 and the timed closure will commence operation from midday on Monday 22nd July. Changes to the kerbside restrictions have been recently introduced on Whitehall Place, Craven Pa....
Honouring our Armed Forces in Westminster - Click here to view this entry
Welcome to MyWestminster, your weekly update on everything happening in your city.
This week (Friday 28 June 2024): Celebrating Westminster More From the City Free Events in Westminster Have Your Say Public Health Update
View full newsletter here >
Licensing News week ending 16.06.2024 - Click here to view this entry
If you are affected by any of the proposals within this update and attached pdf file, please comment, and send to the chairman at chair@rsmsj.com. Good Morning Please find attached Licensing News for the week ending 16th June 2024. Basement And Ground Floor, 52 Wells Street, London W1T 3PR 75 Dean Street, London W1D 3PU Basement And Ground Floor, 353 Harrow Road, London W9 3NA
....
Thames Water (works) - Click here to view this entry
Sat Jun 15 2024
Dear residents and stakeholders, Courtesy Note: Thames Water are carrying out repair works close to our site, and this may lead to some residential supplies being affected. The works are not associated with construction works on the 30GS site. Should your water supply be affected, we have been advised by Thames Water that it will be restored within the next couple of hours. Kind regards, Pete....
WIN fast track entry to West End Live!  - Click here to view this entry
Welcome to MyWestminster, your weekly update on everything happening in your city.
This week (Friday 14 June 2024): Win fast track entry to West End LIVE! More From the City Free events in Westminster Have Your Say Public Health Update
View full newsletter here >
Licensing News week ending 09.06.2024 - Click here to view this entry
If you are affected by any of the proposals within this update and attached pdf file, please comment, and send to the chairman at chair@rsmsj.com. Good Morning Please find attached Licensing News for the week ending 9th June 2024. If you wish to view the applications on our public register you will need to click on the reference numbers provided in the document. Temporary Event Notices can n....
Licensing News week ending 02.06.2024 - Click here to view this entry
If you are affected by any of the proposals within this update and attached pdf file, please comment, and send to the chairman at chair@rsmsj.com. Please find attached Licensing News for the week ending 2nd June 2024. If you wish to view the applications on our public register you will need to click on the reference numbers provided in the document. Temporary Event Notices can now be viewed o....
30 Grosvenor Square (Chancery Rosewood) Newsletter - Click here to view this entry
Welcome to the latest issue of The Chancery Rosewood - Multiplex newsletter. This monthly newsletter will provide an update on the works being undertaken by Multiplex Construction Europe Ltd. Multiplex has been appointed as the main contractor on the transformation of the former United Stated Embassy site on Grosvenor Square into a Grade II listed luxury hotel and retail destination. Headlines i....
West End Live Returns!  - Click here to view this entry
Fri May 31 2024
Welcome to MyWestminster, your weekly update on everything happening in your city.
This week: West End LIVE Returns! More From the City What’s on in Westminster Have Your Say Public Health Update View full newsletter here >
Weekend Works/CLG Minutes 30 Grosvenor Square (Chancery Rosewood Hotel) - Click here to view this entry
Dear Residents and Stakeholders, Please note that WCC approved out of hours works are scheduled for Saturday 1 June and Sunday 2 June 2024 as follows: Saturday 01 June 2024 - 1pm to 4pm
Sunday 02 June 2024 - 10am to 4pm The works involve some percussive activity that will be run intermittently but will not exceed our approved noise and vibration levels. A range of mitigation measures incl....
Garden Party 2024 - Save The Date - Click here to view this entry
SAVE THE DATE.



Dear all,



The Executive Committee of the RSMSJ are delighted to announce the 2024 Garden Party.

The Society is celebrating the 50th year of its inception, in autumn, and are marking this very special occasion by holding the event on September 12th, in Mount Street Gardens, to coincide.



Further information, T....
Italian Embassy private event in Grosvenor Square on 4th June - Click here to view this entry
I’m writing to let you know that on Tuesday 4th June from 5-9pm the Italian Embassy (based at 4 Grosvenor Square) is holding a private event in part of Grosvenor Square. The private event to celebrate Italy’s National Day will take place in the eastern section of the square; less than 30% of the total area would be cordoned off. The remaining parts of the square will remain open to th....
Licensing News week ending 19.05.2024 - Click here to view this entry
If you are affected by any of the proposals within this update and attached pdf file, please comment, and send to the chairman at chair@rsmsj.com. Please find attached Licensing News for the week ending 19th May 2024. Attached to the Licensing News document are the Licensing Sub-Committee decisions for the hearing held on Thursday 16th May 2024 for: Review of Premises Licence - Sunset Strip....
UEFA Champions League Fan Meeting Point Hyde Park - Click here to view this entry
Good afternoon all, I’m flagging the letter attached which is being posted to residents this week in regard to the UEFA Champions League Fan Meeting Point in Hyde Park on June 1. The letter contains key information for residents including a phone number in case you have any issues to raise. Please note that all Hyde Park roads will close on June 1, this is on advice from the Metropolitan Po....
Westminster Dockless E-Scooter and Cycle Hire Parking Trial (Phase 3) - Click here to view this entry
Westminster City Council – Consultation on Experimental Traffic Management Scheme WSP is the agent acting on behalf of Westminster City Council for an experimental traffic management scheme which will: introduce additional dockless e-scooter and cycle hire parking bays on the carriageway, replacing existing parking facilities or waiting restrictions; and amend existing dockless e-scoote....
Emergency Works - South Audley Street - Road Closure - Click here to view this entry
Dear All, Please be advised we have received an emergency works permit on South Audley Street. All details we currently have are provided below, any additional information or changes will be updated once received. WORKS PROMOTER: Thames Water PROMOTER WORKS REFERENCES: MU70100536792-03 LOCATION (+ nearest junction)
Outside 77 in the Footway and Carriageway of South Audley Street WORKS D....
Fire Alert 30 Grosvenor Square - Click here to view this entry
Dear Residents and Stakeholders, You may have been aware of a fire alarm/alert on site (30 Grosvenor Square) this morning (21 May 2024). The alert was caused by a minor temporary electricl fault and was swiftly resolved by the fire service. There is no residual danger to be concerned about and the site has returned to routine activities. Apologies if this caused alarm and also for the sudden spi....
Villiers Street Update - Click here to view this entry
Tue May 21 2024
The new arrangements for the Pedestrian and Cycle Zone in Villiers Street have been delayed. The new arrangements The new arrangements for the Pedestrian and Cycle Zone in Villiers Street have been delayed. The City Council made a decision to proceed with the proposed scheme on 2nd May 2024 after detailed consideration of the responses to the TMO consultation. You can find full details about ....
Licensing news week ending 12.05.2024 - Click here to view this entry
If you are affected by any of the proposals within this update and attached pdf file, please comment, and send to the chairman at chair@rsmsj.com. Please find attached Licensing News for the week ending 12th May 2024. Attached to the Licensing News document are the Licensing Sub-Committee decisions for the hearing held on Thursday 9th May 2024 for:

16 Henrietta Street, London, ....
Encouraging more residents to take part in our survey - Click here to view this entry
We are unfortunately still very low on resident feedback to our wellbeing survey and need around 30 more responses. We’ve heard from 450 workers/visitors and only 120 residents but want the responses to be as representative as possible. Thanks for all your help promoting it so far. We’ve extended the deadline until next Tuesday. Would you be open to sending another note to the RSMSJ m....
Pride In London 2024 Business Information Pack - Click here to view this entry
This year's Business Information Pack contains all of the essential information needed for your business to prepare for Pride In London 2024. Click the button below to download the document to see road closures, delivery and parking advice, and licensing requirements: Business Information Pack
All licensed premises should sign up to our Pride In London Responsible Licencing Scheme. The dea....
Invitation to Westminster Together community conversation (4 June 2024) - Click here to view this entry
Dear resident, Join us for the next Westminster Together community conversation on Tuesday 4 June. This will be an opportunity to celebrate successes, discuss our Fairer Westminster priorities for the remainder of 2024 and early 2025, and speak to our residents. We want to hear from you about the issues that affect your life in Westminster, and the changes you want to see. As Leader of the Coun....
Licensing news week ending 05.05.2024 - Click here to view this entry
Dear All, Please find attached Licensing News for the week ending 5 May 2024. If you wish to view the applications on our public register you will need to click on the reference numbers provided in the document. Temporary Event Notices can now be viewed on our public register. To view a Temporary Event Notice please use the following link: Simple Search (westminster.gov.uk) To search for a Temp....
Villiers Street Update 09/05/24 - Click here to view this entry
Villiers Street Update Email 9th May 2024


Traffic Management Order update

The new arrangements for the Pedestrian and Cycle Zone in Villiers Street are aimed to be in effect from 5am on the 27th May 2024.  Background On 26th January 2022, the Assistant Commissioner of the Metropol....
Grosvenor May 2024 Project Update - Click here to view this entry
Please click here to read the latest update on works towards delivering South Molton. A printed copy will also be delivered to neighbouring residents and businesses next week. If you have any questions please get in touch.
Licensing news week ending 28.04.2024 - Click here to view this entry
If you are affected by any of the proposals within this update and attached pdf file, please comment, and send to the chairman at chair@rsmsj.com. Dear All, Please find attached Licensing News for the week ending 28 April 2024. If you wish to view the applications on our public register you will need to click on the reference numbers provided in the document. Temporary Event Notices can now ....
Licensing news week ending 21.04.2024 - Click here to view this entry
Dear All,   Please find attached Licensing News for the week ending 21 April 2024. Attached to the licensing news document are the Licensing Sub-Committee decisions for the hearing held on Thursday 18th April 2024 for: Jouri, 71 Edgware Road, London. W2 2HZ   If you wish to view the applications on our public register you will need to click on the reference numbers provided in ....
30 Grosvenor Square/Chancery Rosewood Fire Drill - Click here to view this entry
Dear Residents and stakeholders, Please note that the 30 Grosvenor Square construction site will be conducting a fire drill on Friday 3rd May at 2.20pm. The drill will last for approximately 20 minutes and an alarm will sound at the start. Operatives will evacuate site and congregate in public areas including the square. Disruption and disturbance will be kept to a minimum. Please contact me i....
Concrete Pours On Site - Click here to view this entry
Thu Apr 25 2024
Dear Residents and stakeholders, Please note that on Friday 26 April there will be five concrete pours taking place on site from approximately 3pm. All activity will take place on the Grosvenor Square elevation (front of building) and, because of the vehicle turn around timings (two wagons doing all five pours) may overrun beyond 6pm. After washing down the pumps, the works should finish at 7pm....
Villiers Street Works Update - Click here to view this entry
Villiers Street Update - Works Notification Email 25th April 2024


The works are nearly complete!

The main works will be completed by the end of next week. There will still be some minor outstanding work to follow, but this should be substantially completed within the next fortnight.  ....
Licensing news week ending 14.04.2024 - Click here to view this entry
If you are affected by any of the proposals within this update and attached pdf file, please comment, and send to the chairman at chair@rsmsj.com. Please find attached Licensing News for the week ending 14th April 2024. If you wish to view the applications on our public register you will need to click on the reference numbers provided in the document. Temporary Event Notices can now be viewed....
Flavours of Portugal event - Complimentary Glass of Champagne - Click here to view this entry
You are invited to a wine Dinner, Flavours Of Portugal, at Biltmore Mayfiar on 19th April. This is an intimate event limited to 25 guests, and it is the first of the series. Complimentary welcome glass of champagne and a voucher for one cocktail in Pine Bar! The Biltmore Mayfair
44 Grosvenor Square, Mayfair
London, W1K 2HP
T. +44 (0) 7977 054 697
E. marwa.alaaeddine@bilt....
A new production of Haydn's Creation with dance on 7th April - 15% Discount - Click here to view this entry
I hope this email finds you well. I’m writing on behalf of Scherzo Ensemble, a charity dedicated to providing a platform for emerging artists, particularly classical singers. We are presenting a new production of Haydn’s Creation with dance at St John's Smith Square in Westminster on the 7th of April, which we thought would be off interest to your members and community. We wondered i....
Grosvenor Event: 28/04 -  Help Improve Mayfair - Click here to view this entry


We’re carrying out research to better understand community wellbeing in Mayfair. We want to know what it’s like to live or work here, how safe you feel, what you think about local amenities and the environment, and anything else that is important to you.
Visit mayfair.commonplace.i....
Notice of upcoming Annual General Meeting 2024 - Click here to view this entry
Dear Members,   The Annual General Meeting (AGM) of the Residents Society of Mayfair & St James’s (RSMSJ) will occur at 6 pm on Thursday, 18th April 2024, at the Biltmore Hotel, Grosvenor Square.

Committee Membership There are open spaces on the Executive Committee following Rebecca Storey, Edel Kelleher, Marie-Claire Hauschildt, and Steven Fachada's resignation....
Have Your Say: New Standards for Buskers - Click here to view this entry
Dear Members,
Have Your Say on proposals for new standards for busking, as described in the email below, forwarded by Westminster Council. 
The consultation period will remain open until the 14th April. Comments can be submitted via the Concil's dedicated consultation platform on the webpage at www.westminster.gov.uk/street-entertainment-licensing. "I am writing inform you about ....
Upper Grosvenor Street Works Notification - Click here to view this entry
Dear Residents and Stakeholders, Apologies for the resumption of breaking out, percussive noise emanating from site; these are works that will be conducted on an intermittent basis for the next few days. We are using all the acoustic barrier means we have at our disposal and will do our best to keep disruption to a minimum. Please also note that the roadworks along Upper Grosvenor Street will fi....
Road Works Culross Street - Click here to view this entry
Tue Mar 5 2024
Dear Residents and stakeholders, Please see attached file regarding upcoming works on Culross Street. Thanks and regards, Peter Peter Walsh
Communications Manager
30 Grosvenor Square
London
W1K 2HP

Mob: 07767 858 638
peter.walsh@multiplex.global
Screed Pump Works - Click here to view this entry
Sat Mar 2 2024
Dear Residents & Stakeholders, Please note that a screed pump will be operating in Blackburne's Mews on Saturday 2 March 2024 during normal working hours (8am to 1pm). Acoustic barriers will be in place and operatives have ben instructed to work with the utmost consideration for residents. Please contact me if you have any concerns. Kind regards,
Peter Peter Walsh
Communication....
UKPN works on site - 30 Grosvenor Square - Click here to view this entry
Dear Residents and Stakeholders, Further to my previous notification last week, please note that UKPN will be continuing their works on our site this Saturday and Sunday 02/03 March with percussive works starting at 10am. These works are not associated with the Multiplex construction project but are being conducted by UKPN to rectify a fault in their underground cabling that happens to run throu....
Temporary Road Closure Upper Grosvenor Street - Click here to view this entry
Dear Residents and Stakeholders, Please note that there will be a temporary road closure and traffic diversion system (signage) in place along Upper Grosvenor Street from Wednesday 14 February 2024 until Wednesday 28 February 2024 (inclusive). Works will be conducted between 8am and 6pm. The traffic order has been issued and approved by Westminster City Council. Please see attached diagram. Div....
Westminster City Council Consultation - Emissions-Based Charging - Click here to view this entry
WCC are consulting on a proposal to switch their parking charges to an emissions-based system. This may have implications for residents with vehicles or those who receive regular visitors. The full details have been posted onto the website and include links so that anyone who wishes to comment on the proposals can do so. Regards Mike Dunn
Temporary Road Closure/Diversion - Click here to view this entry
Dear Residents and Stakeholders, Please note that there will be a temporary road closure and traffic diversion system (signage) in place along Upper Brook Street from Monday 29 January 2024 until Tuesday 30 April 2024. Works will be conducted between 8am and 6pm. The traffic order has been issued and approved by Westminster City Council. Diversions and prohibited routes will be clearly signed. ....
Vodafone/Colt Connectivity Out Of Hours Works - Click here to view this entry
Dear residents and stakeholders, Please note that Vodafone and Colt will be conducting connectivity works along the West boundary (internally) of 30 Grosvenor Square (where the hoarding has been extended up to the hedge line) on Tuesday 16 January 2024 starting at 9pm. The works are likely to finish in the early hours of Wednesday 17 January 2024. The works will not be noisy or disruptive. Pleas....
Chancery Rosewood Christmas/New Year Arrangements - Click here to view this entry
Dear Residents and Stakeholders Please note that the Chancery Rosewood (30 GS) site will close down on at 6pm Friday 22 December 2023 and reopen at 8am on Tuesday 2 January 2024. There will be some non-noisy internal works in the basement taking place on 27/28/29 December. I will be available throughout the closedown should you have any concerns or questions. Wishing you all a wonderful and pea....
Westminster City Council - Consultation on Traffic Management Proposals - Grosvenor Square - Click here to view this entry
Westminster City Council – Consultation on Traffic Management Proposals – Grosvenor Square   WSP ([link] is the agent acting on behalf of Westminster City Council for a traffic management scheme affecting Blackburne’s Mews, Culross Street, Grosvenor Square, North Audley Street, Upper Brook Street and Upper Grosvenor Street. In accordance with the consu....
Cavendish Square Community Meeting - Click here to view this entry

Your West End Councillors would like to invite you to a follow-up community meeting to discuss anti-social behaviour and crime-related issues in and around Cavendish Square.
In attendance to provide an update, as well as answer any queries or concerns, will be representatives from the Metropolitan Police and Westminster City Council.   Please see details of the meeting below: ....
Mayfair Christmas Lights Switch On Party Thursday 16th November 2023 - Click here to view this entry
Join us on Thursday 16th November for the Annual Mayfair Christmas Lights Switch On Party!   6:30pm The Big Event: Countdown to the Lights Switch-On.

The 2023 Christmas Tree and Mayfair’s iconic Mount Street will be illuminated together.

This glorious Mayfair Christmas Tree, outside The Connaught Hotel designed by a different artist each year and Mount Street w....
Petition to Save the Curzon Cinema, Mayfair - Click here to view this entry
The Curzon Cinema was first established with the building of the cinema site on Curzon Street in 1934, and has a long and storied history there, hosting countless premieres and events for the local community.   The lease for the Curzon Mayfair is up for renewal, and despite having security of tenure, Curzon are expecting the landlord to attempt to terminate its lease by either applying for ....
Grosvenor Square: Proposed minor amendments - Click here to view this entry
Since planning permission for Grosvenor Square’s redesign was approved by Westminster City Council in summer 2022, we have appointed BDP to be Lead Designer and identified minor amendments to enhance the proposals. The amendments respond to comments received during consultation and at planning committee. They will be submitted to Westminster City Council later this year through a Section 73....
Oxford Street Programme: Balderton St., Lumley St., Binney St., and Gilbert St. (North Mayfair) amenity spaces engagement - Click here to view this entry
Following robust feedback from the public consultation over the summer, the Oxford Street Programme progressing and the team wants to hear from you in our next stage of design! The Programme proposes closing motor vehicle access to Oxford Street from some side streets. These plans will allow for more space to be given to pedestrian-only public realm and amenities. We are calling these spaces - am....
49-50 Berkeley Square consultation exhibition - Click here to view this entry
Click below link for details about 49-50 Berkeley Square. "We really are keen to gather as much local feedback as possible." [link]
Cumulative Impact Assessment Briefing for Residents Associations - Click here to view this entry
As you may know the Council has been working on the revised draft of the Cumulative Impact Policy (CIA). We have now begun the statutory consultation on the new draft CIA which will close on the 5th November 2023. The CIA is a data led analysis that seeks to identify any impact from the concentration or clustering of licenced premises in Westminster, where that impact may be taking place and what....
Details of a consultation being run by WCC regarding the night-time economy - Click here to view this entry
We would like to bring your attention to the fact that a WCC night time economy consultation has been placed on the website. Whilst some of the questions do not get to the heart of the matter, there is plenty of scope for adding comments. We therefore urge you to make your views known by responding. In addition the interactive map allows for individual comment to be made regarding specific areas o....
Royal Parks Half Marathon - 08.10.23 - Click here to view this entry
You should be aware of the Royal Parks Half Marathon happening this Sunday 8th October and had contact from London Marathon Events or The Royal Parks, but I wanted to ensure that you are aware of the road closures and potential disruption between 07:00 until 12:00 across some Westminster Highways. Attached is a road closures map highlighting the timings and main streets where the road closures are....
Nickie Aiken MP: Weekly Review 25 September 2023 - Click here to view this entry
Latest news from Nickie Aiken 25th September 2023 Update on St Mary’s Hospital Have your say on leasehold reform! Catching up with the Westminster Bangladeshi Welfare Trust Walkabout with the Residents’ Society of Mayfair & St James’s Business in Focus: Anthony Simon Hair Design, Pimlico Get involved with the Friends of Regent's Park and Primrose Hill Meeting with th....
South Molton Street: Removal of benches and planters - Click here to view this entry
South Molton Street Updates Ahead of works for the South Molton Triangle starting on site, we are removing the Camille Walala benches and planters from South Molton Street. All ten benches and eight planters are being donated to local schools. The removal of this street furniture is being undertaken in partnership with FM Conway and coordinated with Westminster City Council to ensure it is carrie....
The Westminster Mile and Vitality 10 000 update - Click here to view this entry
I am writing to you in relation to the annual Westminster Mile (fully contained within St James Park) and Vitality 10 000 road run, which this year in a change from their usual May Bank Holiday weekend slot are taking place on Saturday 23rd and Sunday 24th September 2023 respectively.

By now you or someone within your organisation should have been contacted by the organisers (London M....
Mayfair Community Newsletter September 2023 - Click here to view this entry
I hope you’ve had a lovely summer, and if you had a staycation you managed to get a few days of sunshine! We've been making the most of the few days of nice weather and our staff have taken part in some great outdoors events to raise money for our charity partner, Groundwork, including bike rides, triathlons and even Dragon Boat racing - it’s been fantastic to watch and cheer on our te....
Clifton Property Partners Newsletter Issue No.2 - Click here to view this entry
FASHIONING MAYFAIR While we might be experiencing a very un-seasonal heatwave at the moment, there is also the traditional September `Back to School` feeling with a freshness of purpose and style moving though London..... London Fashion Week September 2023 Le Gavroche Closing Celebrations David Hockney at Phillips London NEW INSTRUCTION - Green Street, Mayfair, W1
View full newslet....
The Royal Parks Half Marathon 2023- Road Closure - Click here to view this entry
Good afternoon,
We hope this email finds you well. We are contacting you to inform you about the 2023 Royal Parks Half Marathon, a mass participation running event, which will be taking place on Sunday 8th October this year. London Marathon Events are now the event deliver partner. The running route for the 2023 event is the same as previous years, encompassing Hyde Park Corner, the roads ....
Grosvenor - Improving wellbeing in Mayfair and Belgravia - Click here to view this entry
We want to know what it’s like to live or work here, how safe you feel, what you think about local amenities and the environment, and anything else that is important to you. Share your thoughts by Wednesday 13th September to be in with a chance of winning a £150 voucher for Native or Pantechnicon*. This project is part of Grosvenor's wider research programme to understand and improve....
Oxford St Project - Consultation 02/08/23 - Click here to view this entry
Please do check it out. Let the council know that we exist, here, a residential community right next to Oxford Street. Make some suggestions, send comments, positive, asking for changes, whatever. My view is that they should have involved residents earlier in the design process, as we are stakeholders, our streets are affected by how Oxford Street is laid out, how it is managed. Their new plans ....
Oxford St Project - Consultation 14/08/23 - Click here to view this entry
The Oxford St consultation remains open until 31/8. In an ealier communication I outlined the main proposals and promised a follow up with greater detail and analysis. This is it. The most important features are those which I previously advised, namely the reversal of traffic flow in Park St and North Audley St. Park St flow will be southwards and between Oxford St and Upper Brook St all right an....
Westminster Draft POAH SPD Consultation - Click here to view this entry
Good afternoon, 
I’m writing to let you know that we are launching a second round of consultation on our draft Planning Obligations and Affordable Housing Supplementary Planning Document (POAH SPD) (July 2023) and draft Informal Planning Guidance Note on Affordable Workspace (July 2023). 
The draft POAH SPD provides further detail and guidance on how to implement th....
Consultation on Traffic Management Proposals - South Molten Triangle  - Click here to view this entry
Dear Sir / Madam, Westminster City Council - Consultation on Traffic Management Proposals - South Molton Triangle WSP is the agent acting on behalf of Westminster City Council for a traffic management scheme affecting Brook Street, Davies Mews, Davies Street and South Molton Lane. In accordance with the consultation procedure, we would draw your attention to the effects of the proposed Traffic O....
Grosvenor - South Molton Triangle - Click here to view this entry
Community Liason Group We have set up a South Molton Triangle Community Liaison Group for local business, resident and community representatives to discuss and shape topics relating to the development. 6 people joined the first session held at 70 Grosvenor Street on 12th July. Visit this page of the project website to see the slides shared or download the session minutes. 

....

PAGE: 1 (1 - 119)
1  
Show: 5  10  20  30  50  All


©2025 RSMSJ
Website design by Modern Websites